☆ご成約済み☆
ライオンズマンション
淵野辺駅前通り
中古マンション
☆ご成約済み☆
ライオンズマンション
淵野辺駅前通り
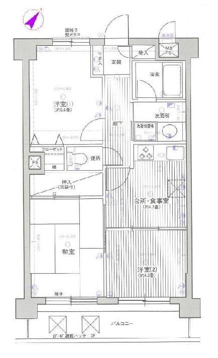
間取:3DK
専有:50.40 m²
バルコニー:7.00 m²
◇収納豊富
◇淵野辺駅徒歩約6分
◇小中学校近く
◇生活環境良好
外観
| 所在地 | 相模原市中央区淵野辺本町4-12-20 |
|---|---|
| 最寄り駅 | JR横浜線「淵野辺駅」徒歩約6分 |
| 取引態様 | 媒介 |
| 完成年月 | 平成 6 年 9 月 |
| 専有 | 50.40 m² |
| バルコニー | 7.00 m² |
| 間取り | 3DK |
| 構造・階数 | RC 造 5 階建 2 階部分 |
| 管理費 | 12,850 円/月 |
| 修繕積立金 | 13,150 円/月 |
| 管理形態 | 巡回 |
| 小学校学区 | 淵野辺小学校 |
| 中学校学区 | 大野北中学校 |
| こだわり | 2面採光 / オートバス / オートロック / システムキッチン / フラット35適合証明書 / ワイドバルコニー / 上水道 / 下水道 / 即入居可能 / 市街地が近い / 日当り良好 / 洗髪洗面化粧台 / 温水洗浄便座 / 追焚機能 / 都市ガス / 閑静な住宅地 / 駅まで平坦 / 駅チカ・バスチカ / 駅徒歩圏 |


