☆ご成約済み☆
レクセルマンション福生第2
中古マンション
☆ご成約済み☆
レクセルマンション福生第2
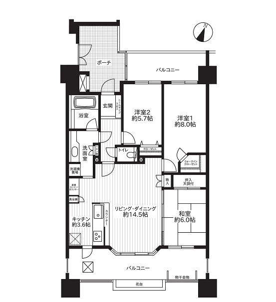
間取:3LDK
専有:82.80 m²
バルコニー:24.58 m²
◇全室5帖以上
◇LDK広々約18.1帖
◇主寝室約8.0帖
◇WIC付
◇2路線2駅徒歩圏
◇陽当たり良好
外観
| 所在地 | 福生市武蔵野台1-29-1 |
|---|---|
| 最寄り駅 | JR青梅線「福生」駅徒歩17分 |
| 取引態様 | 専属専任媒介 |
| 完成年月 | 平成 13 年 10 月 |
| 専有 | 82.80 m² |
| バルコニー | 24.58 m² |
| 間取り | 3LDK |
| 構造・階数 | 鉄筋コンクリート 造 10 階建 3 階部分 |
| 管理費 | 11,705 円/月 |
| 修繕積立金 | 12,420 円/月 |
| 管理形態 | 巡回 |
| 小学校学区 | 第六小学校 |
| 中学校学区 | 第二中学校 |
| こだわり | LDK18帖以上 / カウンターキッチン / フラット35適合証明書 / ワイドバルコニー / 上水道 / 下水道 / 日当り良好 / 浴室乾燥機 / 温水洗浄便座 / 追焚機能 / 都市ガス / 駅まで平坦 / 駅徒歩圏 |


